Mid-century charm in Lerchesberg with commercial use
The Highlights are:
- Mid-century house with commercial use
- Built in 1968
- Possibility for two separate units – for example private and commercial use
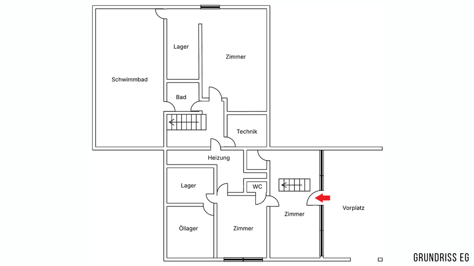
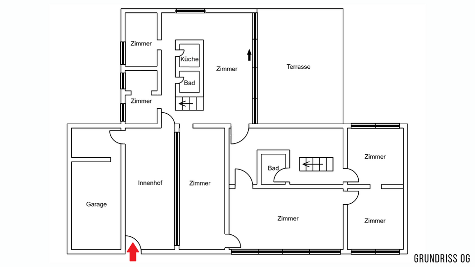
- Floor plan with clear lines
- Up to 10 rooms – versatile for living, home office, guests or creative concepts
- Light-flooded rooms with ceilings up to 3 metres high and large windows that create an open living feeling
- Large terrace and courtyard for outdoor retreats
- 3 bathrooms + 1 guest WC
- Indoor pool
- Garage and parking space for convenient and secure parking
- Oil heating
- Renovation is required. The perfect basis for individual design ideas!
Facts:
| Reference-No. | A1830 | |
|---|---|---|
| City district | Frankfurt Sachsenhausen | |
| Year of construction | 1968 | |
| Space | ca. 634 m² | |
| Plot | 919 m² | |
| Rooms | 10 Rooms | |
| Bathrooms | 3 Bathrooms | |
| Energy performance certificate | In progress | |
| Garage parking space | 1 | |
| Price | € 1.750.000,- plus commission |